More
Сhoose

Pioneering

Creative

Excellence

Nichekala

India

283, Mohanram Nagar,Mogappair West,Mogappair East,Chennai, Tamil Nadu +91-8939004855

BUILD TYPE:  ;Residential
LOCATION:  ;Chennai
STATUS:  ;Completed in 2021

Crafting Thoughtful Everyday Living

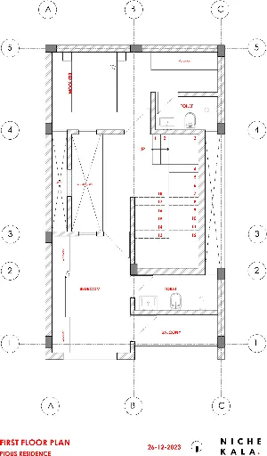
Pious Homes is a compact residential project designed with a focus on simplicity, functionality, and comfort. The design responds to the constraints of an urban plot while creating well-planned interiors that feel open, efficient, and naturally lit. Spatial planning prioritizes smooth movement, privacy where required, and a clear zoning of public and private areas within the home.

Material choices and architectural elements were kept subtle and timeless to enhance longevity and ease of living. Natural ventilation and daylight play a key role in shaping the internal atmosphere, while artificial lighting was layered carefully to maintain warmth and visual comfort throughout the day.

Looking to make your mark? We'll help you turn
your project into a success story.

Ready to bring your ideas to life?
We're here to help